茅ヶ崎市香川5丁目 新築戸建 全11棟 神奈川県茅ヶ崎市香川5丁目|3,780万円の新築一戸建て|エムイーPLUS多摩

  • エムイーPLUS多摩公式LINEの友達登録はこちらから
  • エムイーPLUS多摩公式インスタグラムはこちら

042-312-4722

定休日:水曜日 営業時間:9:00〜18:00

TOPページ >
物件検索 >
新築一戸建て
>
茅ヶ崎市
>
JR相模線
>
茅ヶ崎市香川5丁目 新築戸建 全11棟

新築一戸建て

茅ヶ崎市香川5丁目 新築戸建 全11棟

お気に入り
価格 3,780万円値下がり ローンシミュレーション
所在地 神奈川県茅ヶ崎市香川5丁目
この地域周辺の物件を見る
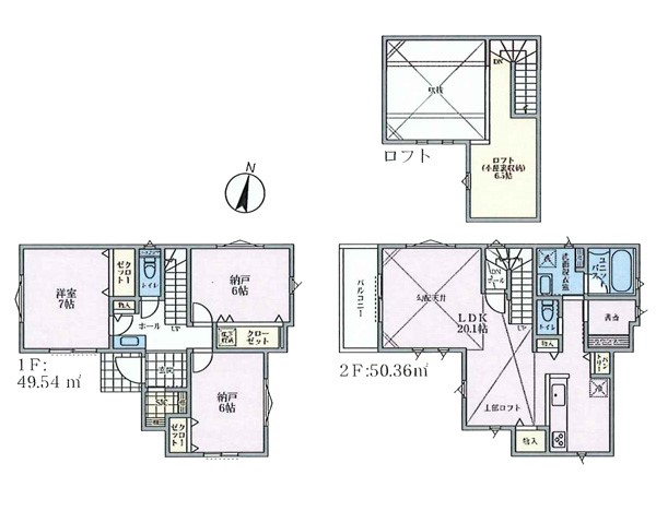
土地面積 102.73m² (31.07坪) 建物面積 99.9u
築年月 2026年2月築 間取り 1SLDK (-)
交通
JR相模線 香川 徒歩5分
JR相模線 寒川 徒歩20分
ここがおすすめ

-

お問い合わせ、資料請求、見学のお申し込みはこちらから

電話をかける(携帯・PHS可)
042-312-4722
「ホームページを見た」とお伝え下さい。

お問い合わせ番号をお伝えください
RHS-980923361

内見予約
お問合せ

セールスポイント

特徴
  • ロフト
  • フローリング
  • システムキッチン
  • シャワートイレ
  • バルコニー
  • 都市ガス
  • プライスダウン
セールスコメント
 ゴミ置き場持分:各1/12 私道持分有


物件概要

採光面 - 構造/階数 木造/地上2階建
建ぺい率 60(%) 容積率 180(%)
駐車場 現況/引渡し 空家/即時
土地権利 所有権 私道負担面積 -

接道状況 接道: 西 私道 道路幅: 4.5m 用途地域
第一種中高層住居専用地域
セットバック なし 法令上の制限 第2種高度地区
地目 宅地 地勢 平坦
建築確認番号 第2025SBCー確00349H号 都市計画 市街化区域
取引態様 仲介
情報更新日 2026年04月25日 次回更新日 2026年05月09日
※各種情報と差異がある場合は現況優先となります

学区情報

小学校区
()
中学校区
()
※物件情報の学区情報について
当サイト物件情報に記載されております通学区域(学区)情報は、国土数値情報ダウンロードサービスが提供する小学校区データ【2021年度】及び中学校区データ【2021年度】を元に加工したものですので、記載情報が現在の学区域と異なる場合がございます。
国土数値情報ダウンロードサービスのWEBサイト上で記述通り、データは必ずしも正確とは言えません。また、通学区域(学区)は毎年見直しの対象となりますので、そちらを踏まえ学区情報は参考としてご活用下さい。

お問い合わせ、資料請求、見学のお申し込みはこちらから

電話をかける(携帯・PHS可)
042-312-4722
「ホームページを見た」とお伝え下さい。

お問い合わせ番号をお伝えください
RHS-980923361

内見予約
お問合せ

この物件でローンシミュレーションする

価格 万円
年利率
ボーナス払い 返済年数
頭金 直接入力する 万円

毎月のご返済額

ボーナス(×年2回)

物件価格

3,780万円
※返済金額はあくまでも目安です。

こちらの物件は複数区画の分譲地・他にも販売中のマンションがあります。

茅ヶ崎市香川5丁目
3780万円〜3880万円

電話をかける(携帯・PHS可)
042-312-4722
「ホームページを見た」とお伝え下さい。

お問い合わせ番号をお伝えください
RHS-980923361

内見予約
お問合せ

お問い合わせ

  1. 1
    内容入力
  2. 2
    内容確認
  3. 3
    完了
お問合せ内容必須
【備考欄】
詳細な見学ご希望時間、ご質問、ご希望条件などがございましたらお聞かせ下さい。
(2000文字以内)
お名前必須
メールアドレス必須
※ご記入いただいたメールアドレス宛てに、お問合せ内容の確認メールをお送りいたします。
※Yahoo!メールなどのフリーメールをご利用の場合、迷惑メールフォルダに入る場合があります。
 迷惑メールのフォルダ・設定等をご確認下さい。
電話番号必須
FAX(任意)
※ご入力いただいたお客さまの個人情報は、「個人情報の取扱いについて」に基づき適正に取り扱います。必ずお読みになり、同意の上お問い合わせください。

お気軽にお問い合わせください

042-312-4722
物件番号 RHS-980923361
※「ホームページを見た」
とお伝え下さい。
来店予約はこちら LINEで物件探し相談 エムイーPLUS多摩公式LINEの友達登録はこちら 売却・買取査定 査定依頼はこちらs

〒185-0021
東京都国分寺市南町2丁目14番
3号ユニエトワール国分寺1階
TEL:042-312-4722
FAX:042-312-4733
定休日:水曜日
営業時間:9:00〜18:00

  • エムイーPLUS多摩公式LINEの友達登録はこちらから
  • エムイーPLUS多摩公式インスタグラムはこちら
スマートフォン用サイトはこちら