立川市上砂町3丁目第2期 新築戸建 全2棟 東京都立川市上砂町3丁目|4,280万円の新築一戸建て|エムイーPLUS多摩
| 価格 | 4,280万円 ![]() |
||||
|---|---|---|---|---|---|
| 所在地 | 東京都立川市上砂町3丁目
この地域周辺の物件を見る |
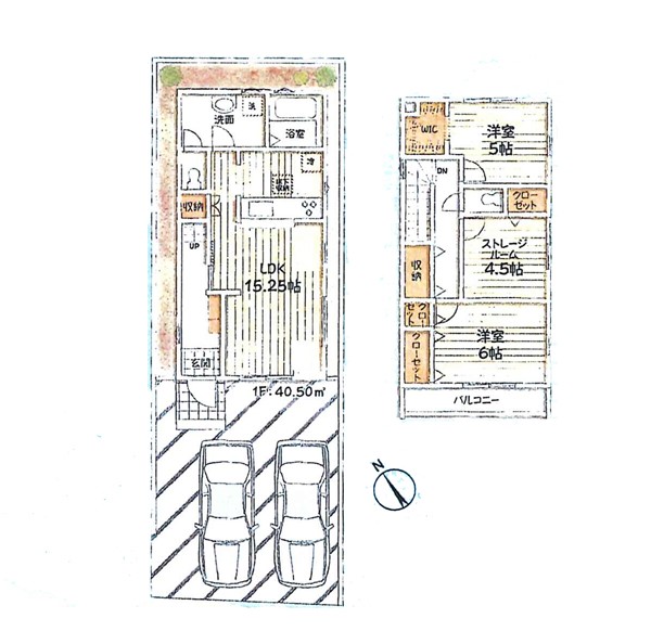
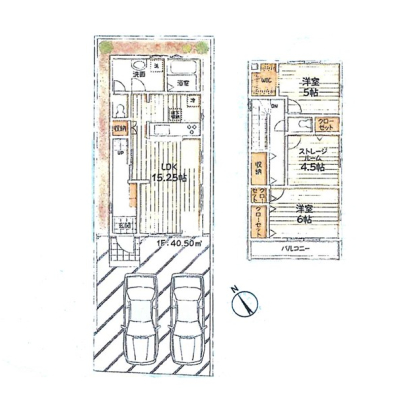
土地面積 | 102.44m² (30.98坪) | 建物面積 | 81u |
| 築年月 | 2026年2月築 | 間取り | 2SLDK (-) | ||
| 交通 |
西武拝島線 武蔵砂川 徒歩17分
JR中央線 立川 バス15分 大山団地西 停歩7分 |
||||
| 特徴 |
|
|---|---|
| セールスコメント |
| 採光面 | - | 構造/階数 | 木造/地上2階建 |
|---|---|---|---|
| 建ぺい率 | 40(%) | 容積率 | 80(%) |
| 駐車場 | 有 | 現況/引渡し | 空家/即時 |
| 土地権利 | 所有権 | 私道負担面積 | - |
| 接道状況 | 接道: 南 公道 道路幅: 3.8m | 用途地域 |
第一種低層住居専用地域
|
| セットバック | なし | 法令上の制限 | - |
| 地目 | 宅地 | 地勢 | |
| 建築確認番号 | 第25UDI1W建03461号 | 都市計画 | 市街化区域 |
| 取引態様 | 仲介 | ||
| 情報更新日 | 2026年04月30日 | 次回更新日 | 2026年05月14日 |
| 小学校区 | 立川市立大山小学校 (東京都立川市) この学区の他の物件を見る |
中学校区 | 立川第五中学校 (東京都立川市) この学区の他の物件を見る |
|---|
| 価格 | 万円 | ||
|---|---|---|---|
| 年利率 | % |
||
| ボーナス払い | 返済年数 | ||
| 頭金 | 直接入力する | 万円 | |

毎月のご返済額 |
ボーナス(×年2回) |
物件価格4,280万円 |
-