東大和市高木3丁目 新築戸建 全1棟 東京都東大和市高木3丁目|2,980万円の新築一戸建て|エムイーPLUS多摩
| 価格 | 2,980万円値下がり ![]() |
||||
|---|---|---|---|---|---|
| 所在地 | 東京都東大和市高木3丁目
この地域周辺の物件を見る |
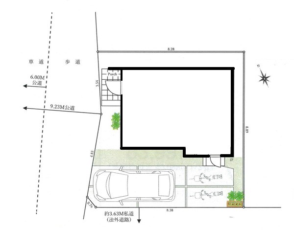
土地面積 | 74.38m² (22.49坪) | 建物面積 | 59.12u |
| 築年月 | 2026年1月築 | 間取り | 3LDK (-) | ||
| 交通 |
西武多摩湖線 武蔵大和 徒歩15分
西武拝島線 東大和市 徒歩25分 |
||||
| 特徴 |
|
|---|---|
| セールスコメント |
| 採光面 | - | 構造/階数 | 木造/地上2階建 |
|---|---|---|---|
| 建ぺい率 | 40(%) | 容積率 | 80(%) |
| 駐車場 | 有 | 現況/引渡し | 空家/即時 |
| 土地権利 | 所有権 | 私道負担面積 | - |
| 接道状況 | 接道: 西 公道 道路幅: 9.2m | 用途地域 |
第一種低層住居専用地域
|
| セットバック | なし | 法令上の制限 | 第1種高度地区(高さ制限10M) 法22条区域 景観法 航空法 土地面積:72.62平米(公簿) 公簿売買 盛土規制法 敷地内都市計画道路(計画決定)有 建築基準法外通路(南側3.63M私道) |
| 地目 | 宅地 | 地勢 | |
| 建築確認番号 | 7多建建1シ第44号 | 都市計画 | - |
| 取引態様 | 仲介 | ||
| 情報更新日 | 2026年04月25日 | 次回更新日 | 2026年05月09日 |
| 小学校区 | 東大和市立第一小学校 (東京都東大和市) この学区の他の物件を見る |
中学校区 | 第一中学校 (東京都東大和市) この学区の他の物件を見る |
|---|
| 価格 | 万円 | ||
|---|---|---|---|
| 年利率 | % |
||
| ボーナス払い | 返済年数 | ||
| 頭金 | 直接入力する | 万円 | |

毎月のご返済額 |
ボーナス(×年2回) |
物件価格2,980万円 |
-