横浜市金沢区釜利谷西6丁目第6 新築戸建 全1棟 神奈川県横浜市金沢区釜利谷西6丁目|6,380万円の新築一戸建て|エムイーPLUS多摩
| 価格 | 6,380万円 ![]() |
||||
|---|---|---|---|---|---|
| 所在地 | 神奈川県横浜市金沢区釜利谷西6丁目
この地域周辺の物件を見る |
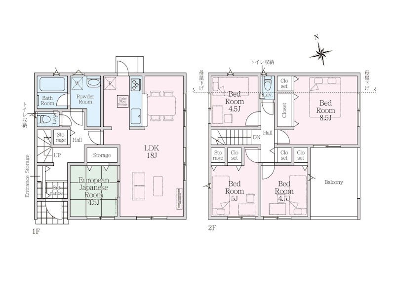
土地面積 | 254.09m² (76.86坪) | 建物面積 | 115.02u |
| 築年月 | 2026年4月築 | 間取り | 5LDK (-) | ||
| 交通 |
京急本線 金沢文庫 逗子線六浦駅 車分
京急逗子線 六浦 |
||||
| 特徴 |
|
|---|---|
| セールスコメント |
| 採光面 | - | 構造/階数 | 木造/地上2階建 |
|---|---|---|---|
| 建ぺい率 | 30(%) | 容積率 | 60(%) |
| 駐車場 | 有 | 現況/引渡し | 空家/即時 |
| 土地権利 | 所有権 | 私道負担面積 | - |
| 接道状況 | 接道: 南西 公道 道路幅: 6.5m | 用途地域 |
第一種低層住居専用地域
|
| セットバック | なし | 法令上の制限 | 法22条区域、第1種高度地区、宅地造成工事規制区域、円海山風致地区(第2種)、建物面積115.02平米(ルーフバルコニー面積9.72平米含む) |
| 地目 | 宅地 | 地勢 | 平坦 |
| 建築確認番号 | 第R07SHC119863号 | 都市計画 | 市街化区域 |
| 取引態様 | 仲介 | ||
| 情報更新日 | 2026年04月17日 | 次回更新日 | 2026年05月01日 |
| 小学校区 | 横浜市立西金沢義務教育学校 (神奈川県横浜市) この学区の他の物件を見る |
中学校区 | 西金沢中学校 (神奈川県横浜市) この学区の他の物件を見る |
|---|
| 価格 | 万円 | ||
|---|---|---|---|
| 年利率 | % |
||
| ボーナス払い | 返済年数 | ||
| 頭金 | 直接入力する | 万円 | |

毎月のご返済額 |
ボーナス(×年2回) |
物件価格6,380万円 |
-