相模原市南区磯部第56 新築戸建 全2棟 神奈川県相模原市南区磯部 |3,580万円の新築一戸建て|エムイーPLUS多摩

  • エムイーPLUS多摩公式LINEの友達登録はこちらから
  • エムイーPLUS多摩公式インスタグラムはこちら

042-312-4722

定休日:水曜日 営業時間:9:00〜18:00

TOPページ >
物件検索 >
新築一戸建て
>
相模原市南区
>
JR相模線
>
相模原市南区磯部第56 新築戸建 全2棟

新築一戸建て

相模原市南区磯部第56 新築戸建 全2棟

お気に入り
価格 3,580万円値下がり ローンシミュレーション
所在地 神奈川県相模原市南区磯部
この地域周辺の物件を見る
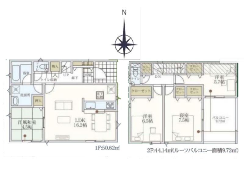
土地面積 164.78m² (49.84坪) 建物面積 94.76u
築年月 2026年3月築 間取り 4LDK (-)
交通
JR相模線 相武台下 バス10分 勝坂入口 停歩6分
JR相模線 相武台下 徒歩27分
ここがおすすめ

-

お問い合わせ、資料請求、見学のお申し込みはこちらから

電話をかける(携帯・PHS可)
042-312-4722
「ホームページを見た」とお伝え下さい。

お問い合わせ番号をお伝えください
RHS-980938269

内見予約
お問合せ

セールスポイント

特徴
  • フローリング
  • システムキッチン
  • シャンプードレッサー
  • シャワートイレ
  • 浴室乾燥機
  • 床下収納
  • バルコニー
  • TVドアホン
  • カースペース2台以上
  • プライスダウン
セールスコメント
 


物件概要

採光面 - 構造/階数 木造/地上2階建
建ぺい率 50(%) 容積率 80(%)
駐車場 現況/引渡し 空家/即時
土地権利 所有権 私道負担面積 -

接道状況 接道: 東 公道 道路幅: 4m 用途地域
第一種低層住居専用地域
セットバック あり 法令上の制限 建築基準法22条 建築基準法55条 高さ10メートル 埋蔵文化地域
地目 宅地 地勢
建築確認番号 第R07SHC119001号 都市計画 市街化区域
取引態様 仲介
情報更新日 2026年04月16日 次回更新日 2026年04月30日
※各種情報と差異がある場合は現況優先となります

学区情報

小学校区 相模原市立新磯小学校
(神奈川県相模原市)
この学区の他の物件を見る
中学校区 相陽中学校
(神奈川県相模原市)
この学区の他の物件を見る
※物件情報の学区情報について
当サイト物件情報に記載されております通学区域(学区)情報は、国土数値情報ダウンロードサービスが提供する小学校区データ【2021年度】及び中学校区データ【2021年度】を元に加工したものですので、記載情報が現在の学区域と異なる場合がございます。
国土数値情報ダウンロードサービスのWEBサイト上で記述通り、データは必ずしも正確とは言えません。また、通学区域(学区)は毎年見直しの対象となりますので、そちらを踏まえ学区情報は参考としてご活用下さい。

お問い合わせ、資料請求、見学のお申し込みはこちらから

電話をかける(携帯・PHS可)
042-312-4722
「ホームページを見た」とお伝え下さい。

お問い合わせ番号をお伝えください
RHS-980938269

内見予約
お問合せ

この物件でローンシミュレーションする

価格 万円
年利率
ボーナス払い 返済年数
頭金 直接入力する 万円

毎月のご返済額

ボーナス(×年2回)

物件価格

3,580万円
※返済金額はあくまでも目安です。

こちらの物件は複数区画の分譲地・他にも販売中のマンションがあります。

相模原市南区磯部
2830万円〜3580万円
  • こちらの物件を見たお客様はこんな物件もチェックしています。
  • お気に入り物件

電話をかける(携帯・PHS可)
042-312-4722
「ホームページを見た」とお伝え下さい。

お問い合わせ番号をお伝えください
RHS-980938269

内見予約
お問合せ

お問い合わせ

  1. 1
    内容入力
  2. 2
    内容確認
  3. 3
    完了
お問合せ内容必須
【備考欄】
詳細な見学ご希望時間、ご質問、ご希望条件などがございましたらお聞かせ下さい。
(2000文字以内)
お名前必須
メールアドレス必須
※ご記入いただいたメールアドレス宛てに、お問合せ内容の確認メールをお送りいたします。
※Yahoo!メールなどのフリーメールをご利用の場合、迷惑メールフォルダに入る場合があります。
 迷惑メールのフォルダ・設定等をご確認下さい。
電話番号必須
FAX(任意)
※ご入力いただいたお客さまの個人情報は、「個人情報の取扱いについて」に基づき適正に取り扱います。必ずお読みになり、同意の上お問い合わせください。

お気軽にお問い合わせください

042-312-4722
物件番号 RHS-980938269
※「ホームページを見た」
とお伝え下さい。
来店予約はこちら LINEで物件探し相談 エムイーPLUS多摩公式LINEの友達登録はこちら 売却・買取査定 査定依頼はこちらs

〒185-0021
東京都国分寺市南町2丁目14番
3号ユニエトワール国分寺1階
TEL:042-312-4722
FAX:042-312-4733
定休日:水曜日
営業時間:9:00〜18:00

  • エムイーPLUS多摩公式LINEの友達登録はこちらから
  • エムイーPLUS多摩公式インスタグラムはこちら
スマートフォン用サイトはこちら