横浜市戸塚区前田町 中古戸建 神奈川県横浜市戸塚区前田町 |3,780万円の中古一戸建て|エムイーPLUS多摩
| 価格 | 3,780万円 ![]() |
||||
|---|---|---|---|---|---|
| 所在地 | 神奈川県横浜市戸塚区前田町
この地域周辺の物件を見る |
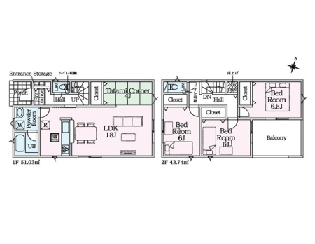
土地面積 | 110.06m² (33.29坪) | 建物面積 | 86.94u |
| 築年月 | 1995年7月築 | 間取り | 4LDK (-) | ||
| 交通 |
JR横須賀線 東戸塚 ブルーライン舞岡駅 車分
|
||||
| 特徴 |
|
|---|---|
| セールスコメント | 建築基準法第22条による区域等 建物面積:別途地下車庫面積約17.58平米有 前面道路承諾書有 |
| 採光面 | - | 構造/階数 | 木造/地上2階建 |
|---|---|---|---|
| 建ぺい率 | 50(%) | 容積率 | 80(%) |
| 駐車場 | 有 | 現況/引渡し | 空家/相談 |
| 土地権利 | 所有権 | 私道負担面積 | - |
| 接道状況 | 接道: 北東 私道 道路幅: 5m | 用途地域 |
第一種低層住居専用地域
|
| セットバック | なし | 法令上の制限 | 建築基準法第22条による区域等 地下車庫面積約17.58平米有 |
| 地目 | 宅地 | 地勢 | 高台 |
| 建築確認番号 | 都市計画 | 市街化区域 | |
| 取引態様 | 仲介 | ||
| 情報更新日 | 2026年05月02日 | 次回更新日 | 2026年05月16日 |
| 小学校区 | 横浜市立秋葉小学校 (神奈川県横浜市) この学区の他の物件を見る |
中学校区 | 秋葉中学校 (神奈川県横浜市) この学区の他の物件を見る |
|---|
| 価格 | 万円 | ||
|---|---|---|---|
| 年利率 | % |
||
| ボーナス払い | 返済年数 | ||
| 頭金 | 直接入力する | 万円 | |

毎月のご返済額 |
ボーナス(×年2回) |
物件価格3,780万円 |
-