町田市東玉川学園1丁目 新築戸建 全1棟 東京都町田市東玉川学園1丁目|6,390万円の新築一戸建て|エムイーPLUS多摩
| 価格 | 6,390万円 ![]() |
||||
|---|---|---|---|---|---|
| 所在地 | 東京都町田市東玉川学園1丁目
この地域周辺の物件を見る |
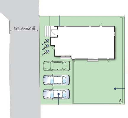
土地面積 | 207.61m² (62.8坪) | 建物面積 | 95.74u |
| 築年月 | 2026年6月築 | 間取り | 4LDK (-) | ||
| 交通 |
小田急小田原線 玉川学園前 徒歩19分
東急こどもの国線 こどもの国 徒歩19分 |
||||
| 特徴 |
|
|---|---|
| セールスコメント |
| 採光面 | - | 構造/階数 | 木造/地上2階建 |
|---|---|---|---|
| 建ぺい率 | 40(%) | 容積率 | 80(%) |
| 駐車場 | 有 | 現況/引渡し | -/2026年6月下旬 |
| 土地権利 | 所有権 | 私道負担面積 | - |
| 接道状況 | 接道: 西 公道 道路幅: 4.9m | 用途地域 |
第一種低層住居専用地域
|
| セットバック | なし | 法令上の制限 | 法22条区域 第一種高度地区 建設協約:玉川学園地区 外壁後退:敷地境界1.5m 敷地面積165平米 3台駐車可能※車種による |
| 地目 | 宅地 | 地勢 | |
| 建築確認番号 | 第HPA-25-11394-1号 | 都市計画 | 市街化区域 |
| 取引態様 | 仲介 | ||
| 情報更新日 | 2026年04月22日 | 次回更新日 | 2026年05月06日 |
| 小学校区 | () |
中学校区 | () |
|---|
| 価格 | 万円 | ||
|---|---|---|---|
| 年利率 | % |
||
| ボーナス払い | 返済年数 | ||
| 頭金 | 直接入力する | 万円 | |

毎月のご返済額 |
ボーナス(×年2回) |
物件価格6,390万円 |
-