足柄上郡松田町松田惣領第25 新築戸建 全4棟 神奈川県足柄上郡松田町松田惣領 |2,680万円の新築一戸建て|エムイーPLUS多摩
| 価格 | 2,680万円 ![]() |
||||
|---|---|---|---|---|---|
| 所在地 | 神奈川県足柄上郡松田町松田惣領
この地域周辺の物件を見る |
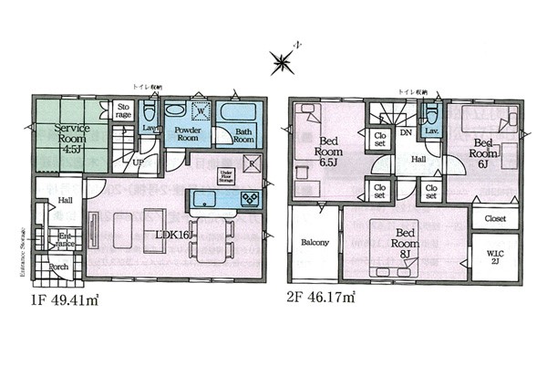
土地面積 | 116.56m² (35.25坪) | 建物面積 | 95.58u |
| 築年月 | 2026年3月築 | 間取り | 3SLDK (-) | ||
| 交通 |
小田急小田原線 新松田 徒歩18分
JR御殿場線 松田 徒歩19分 |
||||
| 特徴 |
|
|---|---|
| セールスコメント |
| 採光面 | - | 構造/階数 | 木造/地上2階建 |
|---|---|---|---|
| 建ぺい率 | 60(%) | 容積率 | 200(%) |
| 駐車場 | 有 | 現況/引渡し | 空家/即時 |
| 土地権利 | 所有権 | 私道負担面積 | - |
| 接道状況 | 接道: 東南 公道 道路幅: 5m | 用途地域 |
第一種住居地域
|
| セットバック | なし | 法令上の制限 | - |
| 地目 | 宅地 | 地勢 | |
| 建築確認番号 | 第KBI−SGM25−10−4334号 | 都市計画 | 市街化区域 |
| 取引態様 | 仲介 | ||
| 情報更新日 | 2026年04月25日 | 次回更新日 | 2026年05月09日 |
| 小学校区 | 松田町立松田小学校 (神奈川県足柄上郡松田町) この学区の他の物件を見る |
中学校区 | 松田中学校 (神奈川県足柄上郡松田町) この学区の他の物件を見る |
|---|
| 価格 | 万円 | ||
|---|---|---|---|
| 年利率 | % |
||
| ボーナス払い | 返済年数 | ||
| 頭金 | 直接入力する | 万円 | |

毎月のご返済額 |
ボーナス(×年2回) |
物件価格2,680万円 |
![]() |
![]() |
足柄上郡松田町松田惣領
1980万円〜2680万円 |
-