川崎市中原区井田3丁目 新築戸建 全3棟 神奈川県川崎市中原区井田3丁目|6,290万円の新築一戸建て|エムイーPLUS多摩
| 価格 | 6,290万円 ![]() |
||||
|---|---|---|---|---|---|
| 所在地 | 神奈川県川崎市中原区井田3丁目
この地域周辺の物件を見る |
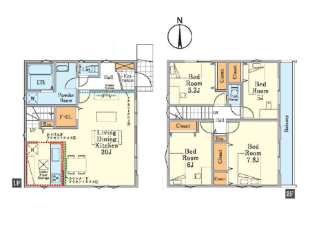
土地面積 | 93.69m² (28.34坪) | 建物面積 | 107.51u |
| 築年月 | 2026年5月築 | 間取り | 4LDK (-) | ||
| 交通 |
東急東横線 日吉 バス6分 さくらが丘 停歩3分
東急東横線 元住吉 バス7分 中原老人福祉センター入口 停歩3分 |
||||
| 特徴 |
|
|---|---|
| セールスコメント |
| 採光面 | - | 構造/階数 | 木造/地上2階建 |
|---|---|---|---|
| 建ぺい率 | 60(%) | 容積率 | 200(%) |
| 駐車場 | 有 | 現況/引渡し | -/2026年5月下旬 |
| 土地権利 | 所有権 | 私道負担面積 | - |
| 接道状況 | 接道: 北 私道 道路幅: 4m | 用途地域 |
第一種中高層住居専用地域
|
| セットバック | なし | 法令上の制限 | 景観法 準防火地域 第ニ種高度地区 建ぺい率:法第53条3項1号ロによる緩和 日影規制:3h-2h/4m 掘削承諾有 ※告知事項あり(詳細は担当までお問い合わせください) |
| 地目 | - | 地勢 | |
| 建築確認番号 | 第HPA−25−11578−1号 | 都市計画 | - |
| 取引態様 | 仲介 | ||
| 情報更新日 | 2026年04月25日 | 次回更新日 | 2026年05月09日 |
| 小学校区 | 川崎市立井田小学校 (神奈川県川崎市) この学区の他の物件を見る |
中学校区 | 井田中学校 (神奈川県川崎市) この学区の他の物件を見る |
|---|
| 価格 | 万円 | ||
|---|---|---|---|
| 年利率 | % |
||
| ボーナス払い | 返済年数 | ||
| 頭金 | 直接入力する | 万円 | |

毎月のご返済額 |
ボーナス(×年2回) |
物件価格6,290万円 |
![]() |
![]() |
川崎市中原区井田3丁目
5850万円〜6290万円 |
-