相模原市南区旭町2期 新築戸建 全1棟 神奈川県相模原市南区旭町 |5,699万円の新築一戸建て|エムイーPLUS多摩
| 価格 | 5,699万円 ![]() |
||||
|---|---|---|---|---|---|
| 所在地 | 神奈川県相模原市南区旭町
この地域周辺の物件を見る |
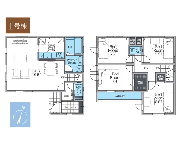
土地面積 | 82.85m² (25.06坪) | 建物面積 | 96.87u |
| 築年月 | 2026年7月築 | 間取り | 4LDK (-) | ||
| 交通 |
小田急小田原線 相模大野 徒歩17分
小田急小田原線 小田急相模原 徒歩17分 |
||||
| 特徴 |
|
|---|---|
| セールスコメント |
| 採光面 | - | 構造/階数 | 木造/地上2階建 |
|---|---|---|---|
| 建ぺい率 | 60(%) | 容積率 | 160(%) |
| 駐車場 | 有 | 現況/引渡し | -/2026年7月下旬 |
| 土地権利 | 所有権 | 私道負担面積 | あり 18m² |
| 接道状況 | 接道: 西 私道 道路幅: 4m | 用途地域 |
第一種住居地域
|
| セットバック | なし | 法令上の制限 | 下水道処理区域 宅地造成等工事規制区域 日影規制4−2.5h 4m 私道通行掘削承諾書取得済 越境物に関する覚書取得済 |
| 地目 | 宅地 | 地勢 | |
| 建築確認番号 | 第25UDI1W建12802号 | 都市計画 | 市街化区域 |
| 取引態様 | 仲介 | ||
| 情報更新日 | 2026年04月30日 | 次回更新日 | 2026年05月14日 |
| 小学校区 | 相模原市立鶴の台小学校 (神奈川県相模原市) この学区の他の物件を見る |
中学校区 | 新町中学校 (神奈川県相模原市) この学区の他の物件を見る |
|---|
| 価格 | 万円 | ||
|---|---|---|---|
| 年利率 | % |
||
| ボーナス払い | 返済年数 | ||
| 頭金 | 直接入力する | 万円 | |

毎月のご返済額 |
ボーナス(×年2回) |
物件価格5,699万円 |
-