小田原市府川 新築戸建 全1棟 神奈川県小田原市府川 |3,100万円の新築一戸建て|エムイーPLUS多摩
| 価格 | 3,100万円 ![]() |
||||
|---|---|---|---|---|---|
| 所在地 | 神奈川県小田原市府川
この地域周辺の物件を見る |
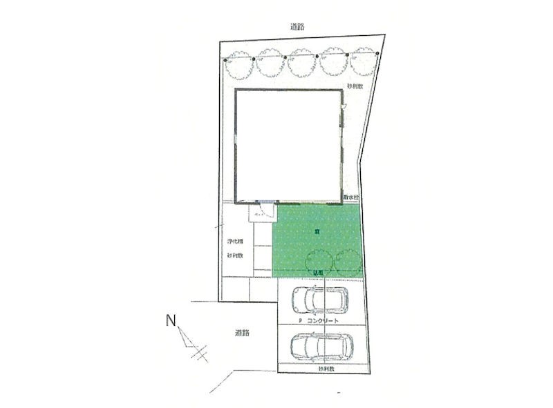
土地面積 | 184.58m² (55.83坪) | 建物面積 | 99.36u |
| 築年月 | 2026年6月築 | 間取り | 4LDK (-) | ||
| 交通 |
- - -
|
||||
| 特徴 |
|
|---|---|
| セールスコメント | 都市計画:市街化調整区域(建築許可:開発許可等による分譲地内) |
| 採光面 | - | 構造/階数 | 木造/地上2階建 |
|---|---|---|---|
| 建ぺい率 | 50(%) | 容積率 | 100(%) |
| 駐車場 | 有 | 現況/引渡し | -/2026年6月下旬 |
| 土地権利 | 所有権 | 私道負担面積 | - |
| 接道状況 | 接道: 南西 公道 道路幅: 4.5m | 用途地域 |
指定なし
|
| セットバック | なし | 法令上の制限 | 緑化基準/緑地率10パーセント(植樹後に引渡) 小田原市景観区域内 入居後、自治会へ加入をお願いします。 開発許可番号/開許第6-1034号(令和6年12月9日) |
| 地目 | 宅地 | 地勢 | |
| 建築確認番号 | 第KBI-YKH25-10-2762号 | 都市計画 | 市街化調整区域 |
| 取引態様 | 仲介 | ||
| 情報更新日 | 2026年04月16日 | 次回更新日 | 2026年04月30日 |
| 小学校区 | 小田原市立富水小学校 (神奈川県小田原市) この学区の他の物件を見る |
中学校区 | 泉中学校 (神奈川県小田原市) この学区の他の物件を見る |
|---|
| 価格 | 万円 | ||
|---|---|---|---|
| 年利率 | % |
||
| ボーナス払い | 返済年数 | ||
| 頭金 | 直接入力する | 万円 | |

毎月のご返済額 |
ボーナス(×年2回) |
物件価格3,100万円 |
-